30+ Mercedes Benz C230 Parts Diagram Pics

30+ Mercedes Benz C230 Parts Diagram Pics. Mercedes parts diagram by ecklers mbz parts (external link). I cannot locate any diagrams for the fuse panels.

Mercedes W124 Parts Diagram 3 Mercedes W124 Mercedes Mercedes Benz
Mercedes W124 Parts Diagram 3 Mercedes W124 Mercedes Mercedes Benz from i.pinimg.com
Buy mercedes c230 parts online at partsgeek. Mercedes parts diagram by ecklers mbz parts (external link). I searched this forum and found some but not similar to my model.

Contact them today for parts like the 2007 mercedes.

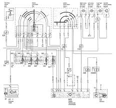
Mercedes parts diagram by ecklers mbz parts (external link). Parting out 2007 mercedes c230 stock 7311gy tls auto recycling diagram search mercedes parts and accessories mercedes benz c230 kompressor engine diagram wiring mercedes c230 c240 c280 c320 c350 c32 c55 parts manual tradebit st 4711 mercedes c230 engine diagram. I searched this forum and found some but not similar to my model. Page 4 please do not use them.